Residenza "La Vigna" - Bussolengo
TUTTE LE VILLETTE SONO STATE VENDUTE E CONSEGNATE
ACQUISTO CON AGEVOLAZIONI PREVISTE DAL SISMABONUS
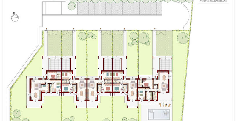
Il nuovo complesso residenziale “La Vigna” sorgerà a ovest del Comune di Verona, a pochi chilometri dalla cittadina di Bussolengo, importante centro posto una decina di chilometri a ovest di Verona, comodo al lago e a tutti i servizi.
Il progetto andrà a ristrutturare completamente il già esistente complesso architettonico, recuperando e riconvertendo il nucleo rurale in un moderno complesso residenziale di 5 unità abitative organizzate in un unico aggregato e su un unico piano fuori terra, con le relative autorimesse porticati che presentano tutti almeno due lati liberi.
Le residenze saranno composte da un ampio soggiorno con angolo cottura il tutto prospettante sul porticato, tre camere per le unità di testa e due per quelle centrali, 2 locali bagno nella zona notte.
Caratteristiche:
• Impianto fotovoltaico dedicato per ogni singola unità immobiliare non inferiore a 2KW per provvedere alle esigenze elettriche e all’alimentazione della pompa di calore
• Impianto di climatizzazione invernale/estiva a pompa di calore a elevata efficienza classe A++ e impianto di raffrescamento radiante.
• Riscaldamento radiante a pavimento con integrazione di termo-arredo nei bagni
• impianto di deumidificazione ad integrazione al raffrescamento mediante installazione di opportune sonde di umidità e di relativo deumidificatore
• Predisposizione a richiesta impianto VMC
CLASSE ENERGETICA A (dec. Min. 26/6/2009)
Tutte le unità abitative saranno certificate classe A secondo il Decreto Ministeriale 26/6/2009 Ministero dello Sviluppo Economico- “Linee guida nazionali per la certificazione energetica degli edifici”.
Tale risultato è consentito dall'adozione di soluzioni costruttive che permettono l'eliminazione pressoché totale di ponti termici ed il raggiungimento di elevati valori di resistenza termica.
Le stesse scelte impiantistiche sono state condotte per il raggiungimento di tale obiettivo.
Finiture
Pavimenti:
In tutti i vani abitabili e servizi saranno posati pavimenti in ceramica e gres porcellanato di prima scelta e con posa normale, fugata.
I pavimenti dei poggioli saranno realizzati in piastrelle in gres antiscivolo e antigelivo.
Nel corridoio dello scantinato, nelle cantine, nei garages e nella corsia di manovra è previsto pavimento in battuto di cemento lisciato con frattazzo meccanico.
Porte e finestre:
Le porte interne saranno a struttura tamburata nelle tonalità e gradazioni scelte di volta in volta dal Direttore dei Lavori, a un battente, complete di cornici coprifilo in massello, cerniere in acciaio a scomparsa, serratura magnetica, maniglie in cromo satinato. Il portoncino d'ingresso all'unità immobiliare sarà ad un battente di tipo blindato con intelaiatura metallica, rivestito con pannelli impiallacciati laccati bianco, in classe di antieffrazione 4 EN. Isolamento acustico e valori di trasmittanza termica adatti al suo utilizzo come da normativa vigente.
I serramenti delle finestre e delle porte finestre saranno in abete lamellare e telaio fisso con tripla battuta e doppia guarnizione e verniciati nelle tonalità e gradazioni scelte di volta in volta dal Direttore dei Lavori. Le maniglie saranno in cromo satinato. Su tutti i fori finestra e porta finestra esterni saranno montate tapparelle automatizzate con motore elettrico in alluminio, coibentate e montate su monoblocco isolato; tutti i serramenti esterni saranno predisposti per la posa della zanzariera
I serramenti esterni delle cantine/garage saranno in alluminio zincato e verniciato;
La porta a chiusura del garage sarà del tipo basculante in acciaio zincata e verniciata munita di chiusura a cilindro.
Maggiori informazioni disponibili sul capitolato tecnico commerciale.
