Immobili in Vendita
Conosciuta come Carli Costruzioni, la nostra azienda si occupa di vendere direttamente gli immobili da noi costruiti, senza intermediari e spese accessorie. La gestione diretta della vendita garantisce controllo sulla trattativa e massima riservatezza, senza che intervengano elementi esterni.
La vendita diretta offre molti vantaggi, tra cui la libertà e la sicurezza di comprare un immobile nuovo e - in fase di costruzione - poterne scegliere le finiture per dare vita alla casa dei propri sogni, con la certezza di avere alle spalle una realtà solida e dall'esperienza trentennale, che ha portato a termine centinaia di vendite con la massima soddisfazione del cliente.
Grazie agli accordi con istituti di credito convenzionati è inoltre possibile avere accesso alle migliori soluzioni di pagamento.
Carli: la sicurezza di comprare casa.
Cerca negli immobili In vendita
Trilocale Pescantina
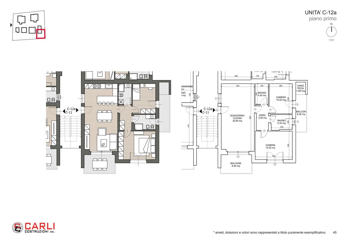
Appartamento trilocale piano primo composto da soggiorno con cucina, due camere, due bagni, balcone ...
VediTrilocale Pescantina
Appartamento trilocale piano primo composto da soggiorno con cucina, due camere, due bagni, balcone ...
VediTrilocale Verona
Appartamento trilocale a piano terra composto da zona giorno, due camere e due bagni. All'esterno, ...
VediTrilocale Verona
Appartamento trilocale a piano primo composto da zona soggiorno/cucina, due camere, due bagni, balco...
VediTrilocale Verona
Appartamento trilocale a piano primo composto da zona giorno, due camere, due bagni, balconcino e te...
VediTrilocale Verona
Appartamento trilocale a piano primo composto da zona soggiorno/cucina, due camere, due bagni, balco...
VediTrilocale Verona
Appartamento trilocale a piano terra composto da zona soggiorno/cucina, due camere e due bagni. All...
VediTrilocale Verona
Appartamento trilocale a piano primo composto da zona giorno, due camere, due bagni, balcone e terra...
VediTrilocale Verona
Appartamento trilocale a piano terra composto da zona giorno con angolo cucina, due camere, due bagn...
Vedi