Trilocale In vendita Pescantina
Prezzo: Richiedi informazioni
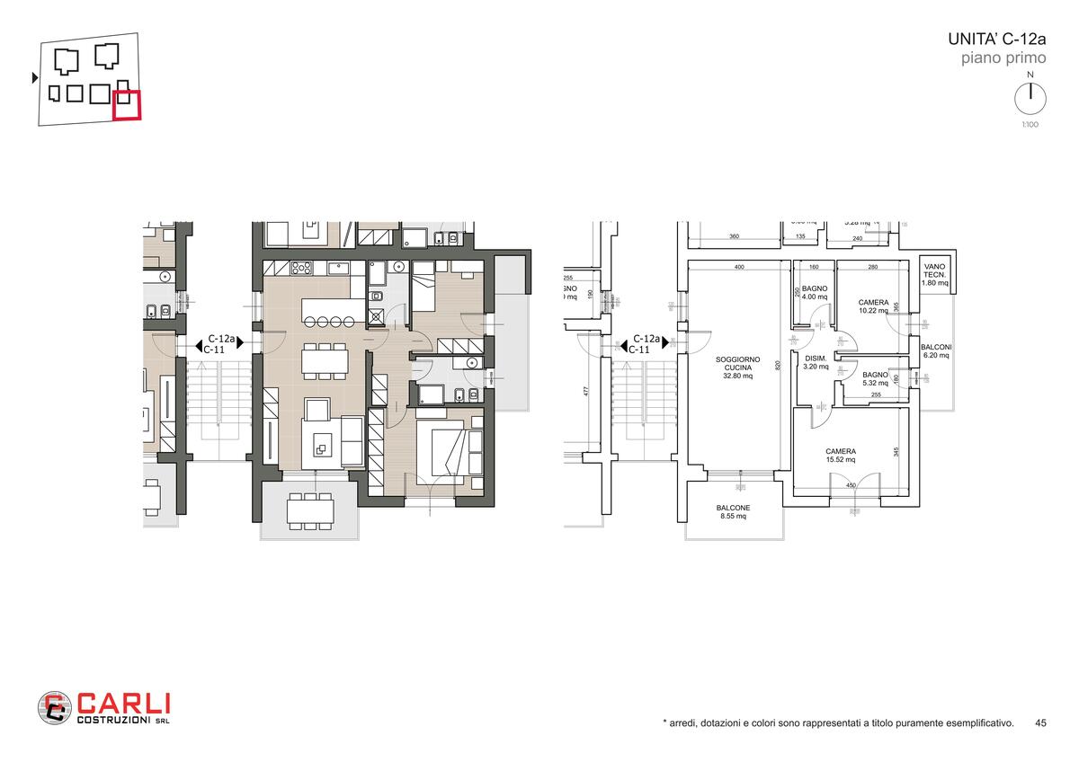
Rif.: Trilocale C12a Primavera
Zona:
Pescantina
Descrizione immobile
Appartamento trilocale piano primo composto da soggiorno con cucina, due camere, due bagni, balcone e terrazzo.
Garage e cantina al piano interrato.
Caratteristiche dell'immobile
| Contratto | In vendita |
| Tipologia | Trilocale |
| Comune | Pescantina |
| Al piano | 1 |
| Livelli Immobile | 1 |
| Piani Edificio | 2 |
| Numero Locali | 3 |
Richiesta informazioni
Immobili simili
Trilocale In vendita Pescantina
Appartamento trilocale piano terra composto da soggiorno con cucina, due camere, due bagni, ripostig...
VediTrilocale In vendita Pescantina
Appartamento trilocale piano secondo composto da soggiorno con cucina, due camere, due bagni, ripost...
VediBilocale In vendita Peschiera del Garda
Appartamento bilocale a piano terra composto da zona giorno, camera matrimoniale, un bagno, porticat...
Vedi