Trilocale In vendita Pescantina
Prezzo: Richiedi informazioni
Rif.: Trilocale C06a Primavera
Zona:
Pescantina
Descrizione immobile
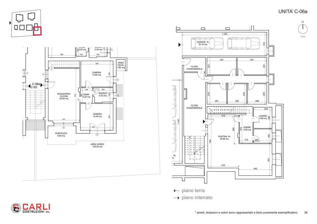
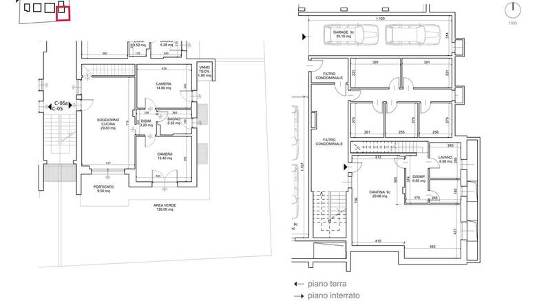
Appartamento trilocale piano terra composto da soggiorno con cucina, due camere, un bagno, porticato e giardino di proprietà.
Al piano interrato, collegato da scala interna, ampia taverna, bagno e locali accessori.
Garage e cantina al piano interrato.
Caratteristiche dell'immobile
| Contratto | In vendita |
| Tipologia | Trilocale |
| Comune | Pescantina |
| Al piano | 0 |
| Livelli Immobile | 2 |
| Piani Edificio | 2 |
| Numero Locali | 4 |
Richiesta informazioni
Immobili simili
Trilocale In vendita Peschiera del Garda
Appartamento trilocale a piano primo composto da zona giorno, due camere, un bagno, disbrigo con spa...
VediTrilocale In vendita Pescantina
Appartamento trilocale piano primo composto da soggiorno con cucina, due camere, due bagni, ripostig...
VediBilocale In vendita Peschiera del Garda
Appartamento bilocale a piano primo composto da zona giorno, camera matrimoniale, un bagno e terrazz...
Vedi